- Gas central heating
- Modern flooring throughout
- Well-maintained communal close
- Traditional sandstone tenement
- Open Day Saturday 17th January @ 11:45am till 12:15pm
Avj Homes Estate Agents This well-presented second-floor two-bedroom flat is set within a traditional sandstone tenement on Cathcart Road. The property offers bright, well-proportioned accommodation, a freshly fitted kitchen and bathroom, and an excellent layout suited to first-time buyers, professionals, or buy-to-let investors.
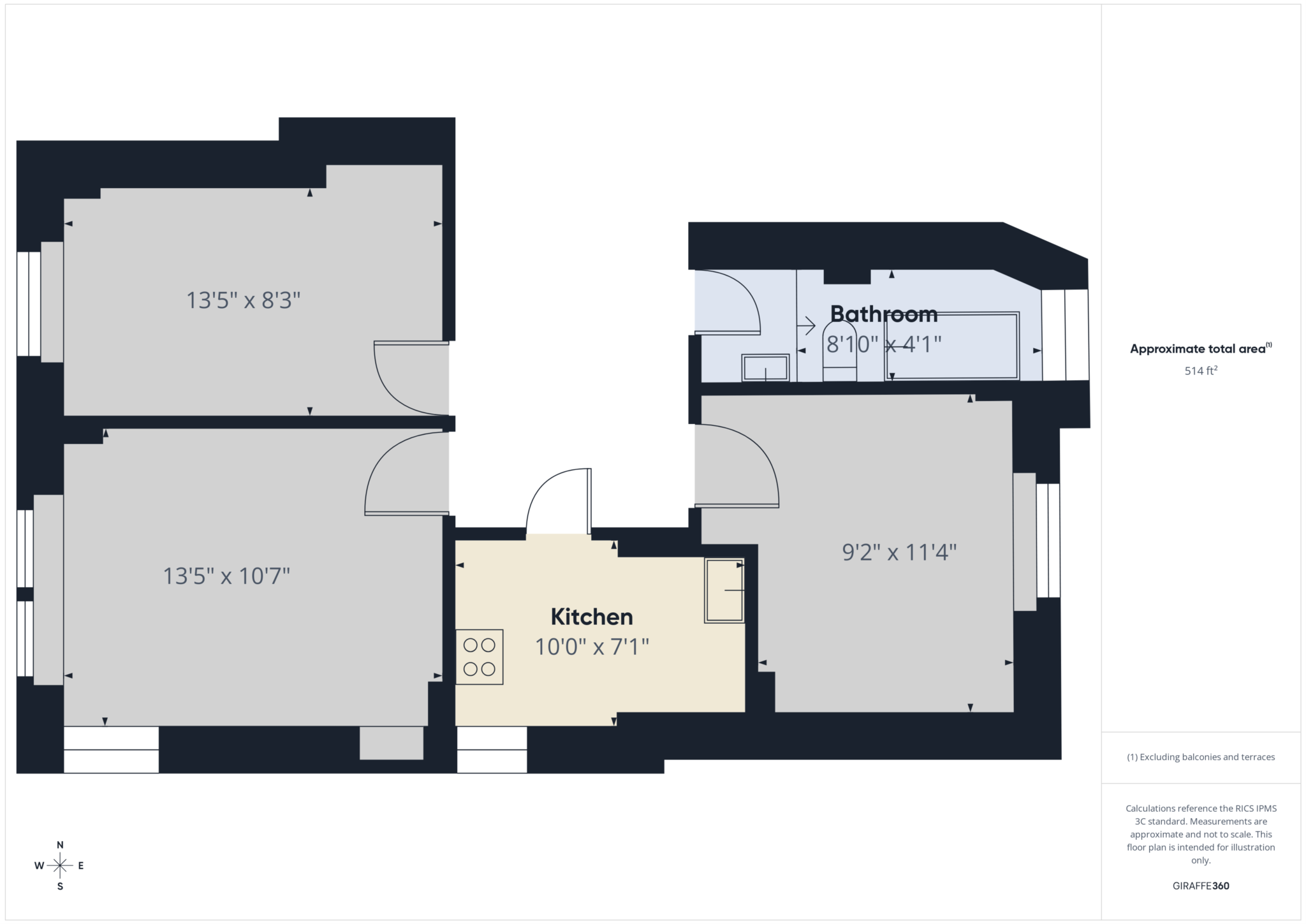
Approximate internal area: 514 sq ft
Accommodation
Lounge / Living Room
A bright and spacious main living area, finished in neutral décor with modern flooring and excellent natural light.
• Suitable for both lounge and dining furniture
• Large window formation to the front
Kitchen
10'0' x 7'1'
(3.05 m x 2.16 m)
Freshly fitted kitchen with modern wall and base units, integrated oven, gas hob, tiled splashback, and contrasting worktops. Practical layout with space for appliances and natural ventilation.
Bedroom One (Front-Facing Double)
13'5' x 10'7'
(4.09 m x 3.23 m)
A generous double bedroom with excellent floor space for wardrobes and additional storage. Bright aspect and finished in light, neutral tones.
Bedroom Two
13'5' x 8'3'
(4.09 m x 2.51 m)
A well-proportioned second bedroom, ideal for a guest room, home office, or nursery, quietly positioned within the property.
Bathroom
8'10' x 4'1'
(2.69 m x 1.24 m)
Freshly upgraded bathroom comprising a white suite with bath and overhead electric shower, WC, and wash-hand basin. Fully tiled walls and window providing natural light.
Local Area & Amenities
Cathcart Road offers a wide range of local shops, cafés, supermarkets, and services, with Shawlands, Mount Florida, and Glasgow City Centre all easily accessible.
Schools
A good selection of local primary and secondary schools serve the area, making the property suitable for families and professionals alike.
Transport Links
Rail: Nearby stations provide regular services to Glasgow Central
Road: Easy access to the M74 and onward routes to Edinburgh
Bus: Frequent services along Cathcart Road
Broadband & Connectivity
Superfast broadband available
Suitable for home working, streaming, and multiple devices
Council Tax
Glasgow City Council, Band B
Notice
Please note we have not tested any apparatus, fixtures, fittings, or services. Purchasers must undertake their own investigation into the working order of these items. All measurements are approximate and photographs provided for guidance only.
| Utility |
Supply Type |
| Electric |
Unknown |
| Gas |
Unknown |
| Water |
Unknown |
| Sewerage |
Unknown |
| Broadband |
Unknown |
| Telephone |
Unknown |
| Other Items |
Description |
| Heating |
Not Specified |
| Garden/Outside Space |
No |
| Parking |
No |
| Garage |
No |
| Broadband Coverage |
Highest Available Download Speed |
Highest Available Upload Speed |
| Standard |
16 Mbps |
1 Mbps |
| Superfast |
80 Mbps |
20 Mbps |
| Ultrafast |
1800 Mbps |
1000 Mbps |
| Mobile Coverage |
Indoor Voice |
Indoor Data |
Outdoor Voice |
Outdoor Data |
| EE |
Likely |
Likely |
Enhanced |
Enhanced |
| Three |
Enhanced |
Enhanced |
Enhanced |
Enhanced |
| O2 |
Enhanced |
Likely |
Enhanced |
Enhanced |
| Vodafone |
Likely |
Likely |
Enhanced |
Enhanced |
Broadband and Mobile coverage information supplied by Ofcom.